Architecture

Architecture

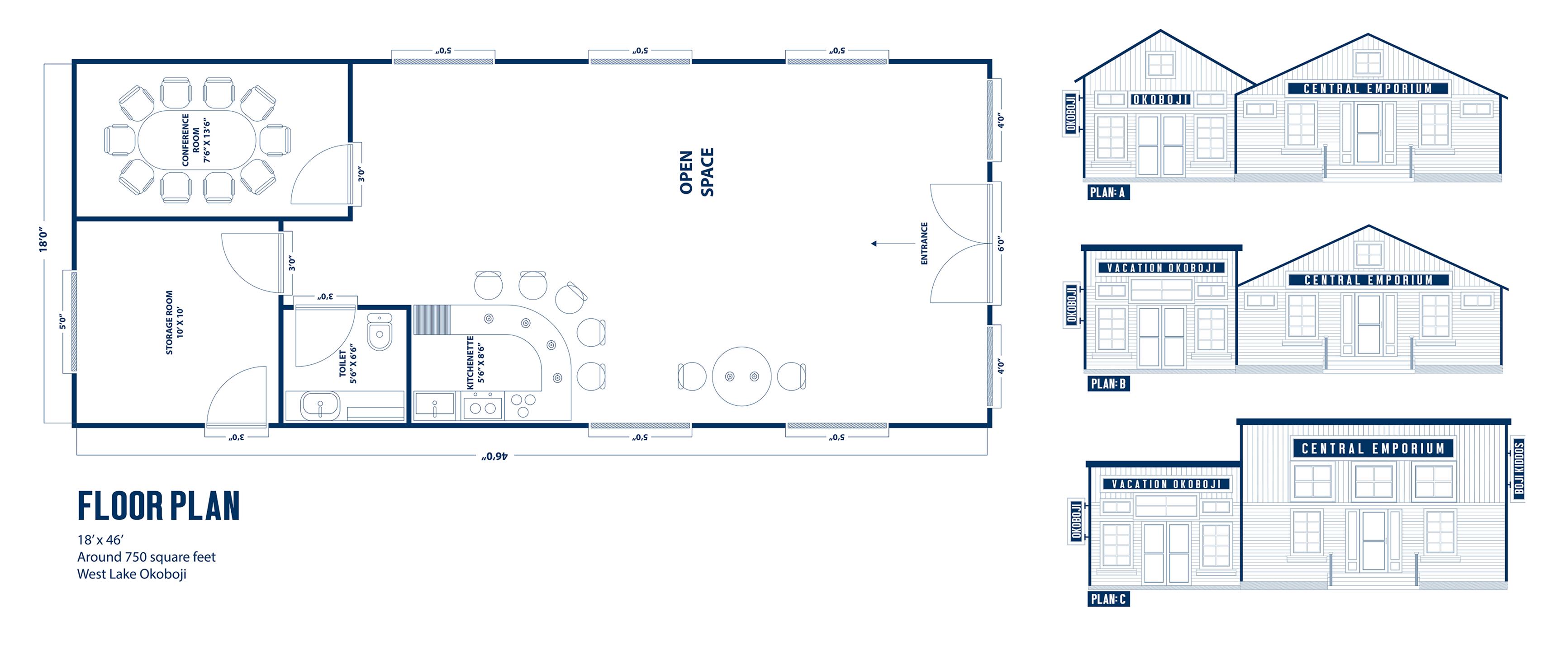
In 2025, I delivered one of my most memorable works at 144 Lake Shore Dr, Arnolds Park, Iowa, where I designed two distinct architectural environments for Central Emporium and Vacation Okoboji. As the project architect, I shaped both exterior and interior experiences—blending lakeside context with contemporary functionality. The result is a pair of thoughtfully crafted spaces that reflect clarity of form, purposeful planning, and a refined architectural identity.